21x8m house plan is given in this 2D Autocad DWG drawing file. Download the 2D Autocad DWG drawing file.
Description
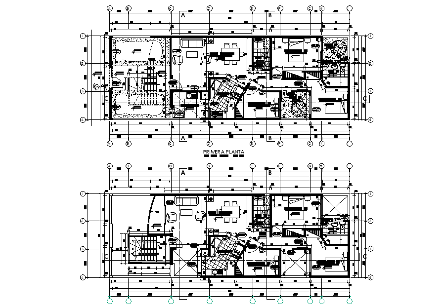
21x8m house plan is given in this 2D Autocad DWG drawing file. This is G+4 floor house plan. The length and breadth of the plan is 21m and 8m respectively. This plan consists of car parking in the ground floor, kitchen, dining room, living hall, bedrooms with attached toilet, three bedrooms and patio. This is 3BHK house plan. This is same for remaining floor. Download the 2D Autocad drawing file. Thank you downloading the 2D AutoCAD DWG drawing file and other CAD program files from our website.
Uploaded by:

