25’x40’ East facing house plan is given as per vastu shastra in this Autocad drawing file. Download now.
Description
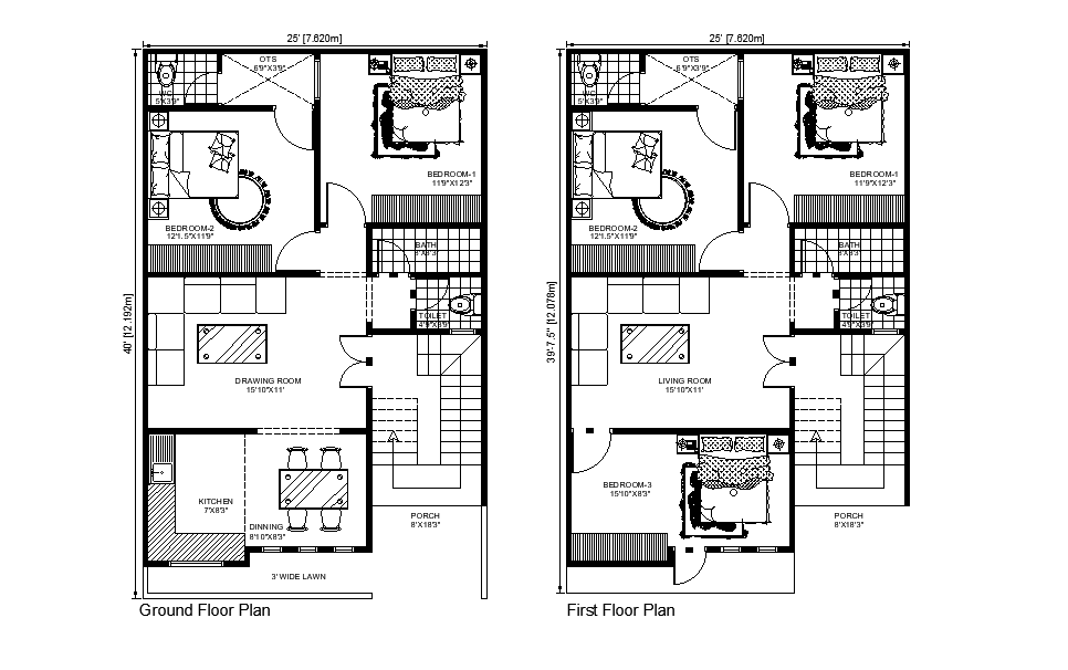
25’x40’ East facing house plan is given as per vastu shastra in this Autocad drawing file. The total built up area of the plan is 720sqft. Dining cum drawing room, kitchen, master bedroom with attached toilet, children’s bedroom, common toilet, porch and outside toilet is available in the ground floor plan. Master bedroom with attached toilet, children’s bedroom, common toilet, porch and study room and common area is available in the first floor plan. Download the 2D Autocad drawing file.
Uploaded by:

