House Building AutoCAD Section CAD Drawing Download DWG File
Description
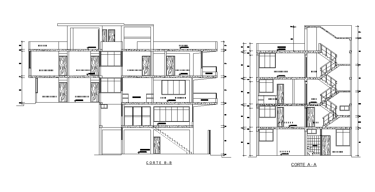
The residence housing building section CAD drawing that shows front and side view which includes floor level building model design, staircase with railing wall, RCC slab, and door window marking detail. Download the AutoCAD file now. Thanks for downloading the file and another CAD program from the cadbull.com website.
Uploaded by:

