12x21m multifamily residential apartment building plan is given in this 2D Autocad DWG drawing file. Download the Autocad file.
Description
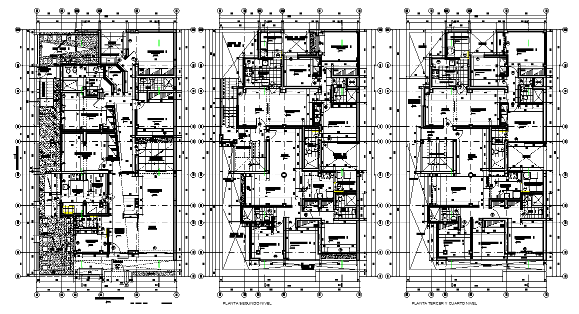
12x21m multifamily residential apartment building plan is given in this 2D Autocad DWG drawing file. This is G+3 apartment building. At ground floor car parking is provided for the all houses. At ground floor 4bhk house is available. At first, second and third floor two houses are available with 3bhk. Generally this plan consists of hall, kitchen, dining and toilets. Download the 2D Autocad DWG drawing file. Thank you for downloading the 2D AutoCAD DWG drawing file and other CAD program files from our website.
Uploaded by:

