1 BHK Small House Ground Floor And First Floor Plan DWG File
Description
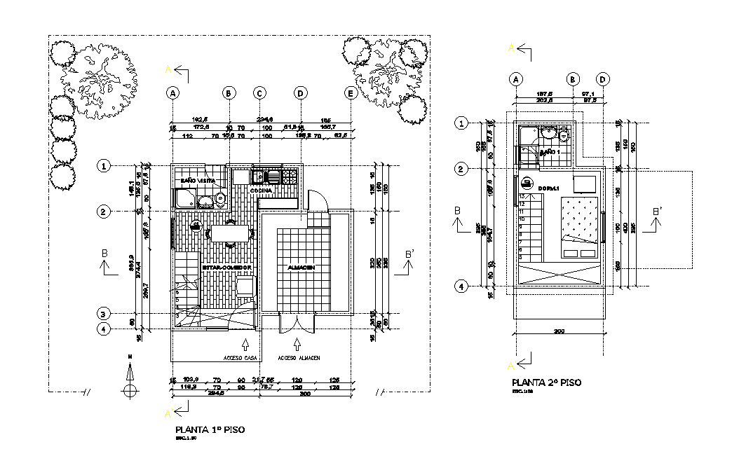
The Residence small house plan CAD drawing shows ground floor and first floor layout plan with furniture design which consist 1 bedroom with an attached toilet, kitchen, dining area and living room. the additional drawing such center line plan with dimension detail. Thank you for downloading the AutoCAD file and other CAD program from our website.
Uploaded by:

