120 Square Meter House Layout Plan AutoCAD Drawing DWG File

120 Square Meter House Layout Plan AutoCAD Drawing DWG File
Profile

Uploaded by:

Komal

Description
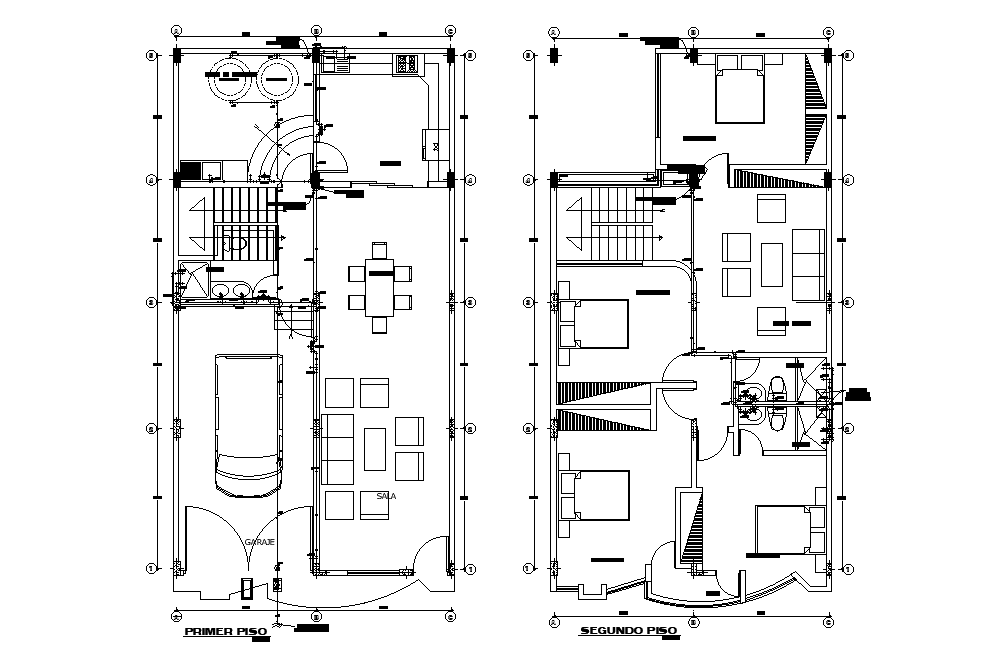
15X8 meter house ground floor and first floor layout plan AutoCAD drawing that shows the total built up area of the plan is 120 Square meter plot size which consist 4 bedrooms, kitchen, dining area, drawing room, patio area, car parking porch and column layout design with all dimension detail. Thank you for downloading the AutoCAD file and other CAD program from our website.
Profile

Uploaded by:

Komal

find Latest

Related Files

WhatsApp Chat