8x20m residential building furniture’s setup is given in this Autocad drawing file.Download the 2D Autocad file.
Description
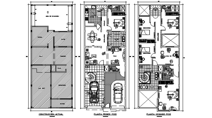
8x20m residential building furniture’s setup is given in this Autocad drawing file. This is G+1 house plan. In the ground floor car parking, kitchen, dining, living room, bedroom with attached toilet and common toilet is available. In the first floor kitchen, dining, living room, bedroom with attached toilet and common toilet is available. Roof plan is given. For more details download the Autocad drawing file. Thank you for downloading the 2D Autocad files and other CAD program files from our website.
Uploaded by:

