8X16 Meter House Plan With Furniture Layout CAD Drawing DWG File
Description
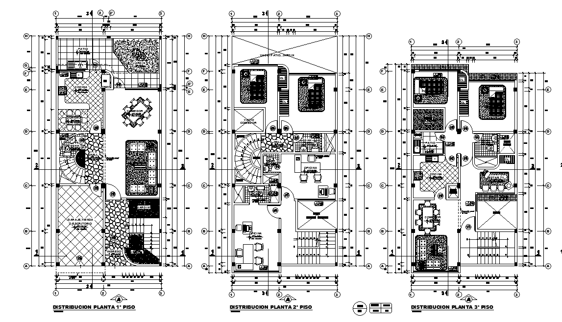
The architecture residence 2 unit house plan AutoCAD drawing shows the length and breadth of the plan is 16m and 8m respectively which consist 2 bedrooms, kitchen, drawing room, dining area, and staircase. the addition drawing such as furniture design, center line and dimension detail. Thank you for downloading the AutoCAD file and other CAD program from our website.
Uploaded by:

