30x45 House Plan Layout Available in AutoCAD DWG File
Description
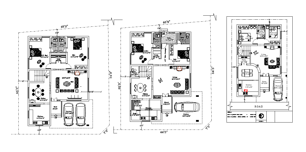
30’x45’ house plan is given in this Autocad drawing file. in this three types of ground floor plan is given. In the first ground floor kitchen, portico, sit out, dining, car parking, living room, master bedroom with attached toilet, and kid’s bedroom with attached toilet are available. In the second ground floor store room, wash room, common toilet, kitchen, car parking portico, sit out, dining, living room, master bedroom with attached toilet, and kid’s bedroom with attached toilet are available. In the third ground floor puja room, kitchen, portico, sit out, car parking, dining, living room, master bedroom with attached toilet, and kid’s bedroom are available. For more details download the drawing file. Thank you for downloading the Autocad drawing file and other CAD programs from our website.
Uploaded by:

