180 Square Meter House Plan With Furniture Design Download DWG File
Description
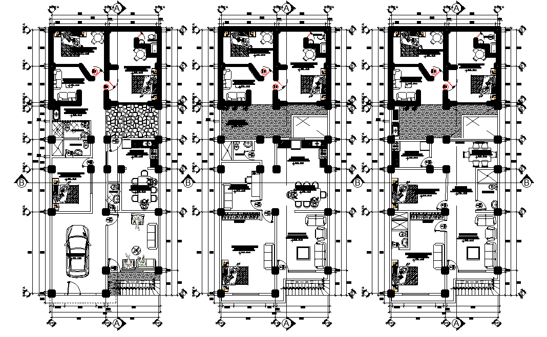
The architecture residence house apartment layout plan AutoCAD drawing that shows 3 storey floor level center line plan that shows 3 BHK and 4 BHK house plan with furniture design and the total build up area is 180 square meter plot size. Thank you for downloading the AutoCAD file and other CAD program from our website.
Uploaded by:

