AutoCAD House Building Section CAD Drawing Download DWG File
Description
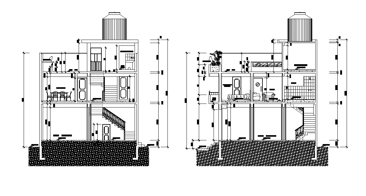
Residence house building section CAD drawing that shows front and side view which consist cross furniture, door window, water tank and garden on terrace. the length and breadth of the plan is 9m and 9m respectively with dimension detail. Thank you for downloading the AutoCAD file and other CAD program from our website.
Uploaded by:

