180 Square Meter 4 Bedrooms House Layout Plan DWG File
Description
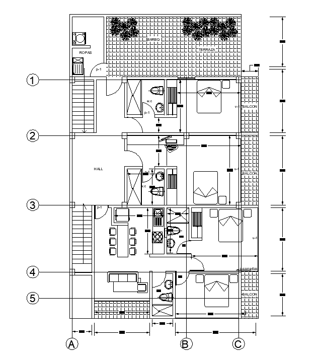
the residence house 180 square meter plot size with center line plan that shows 4 bedrooms with an attached toilet, kitchen, dining area, hall, living area, and open terrace detail. Thank you for downloading the AutoCAD file and other CAD program from our website.
Uploaded by:

