9x13 House Plan AutoCAD DWG File with Detailed Floor Layouts
Description
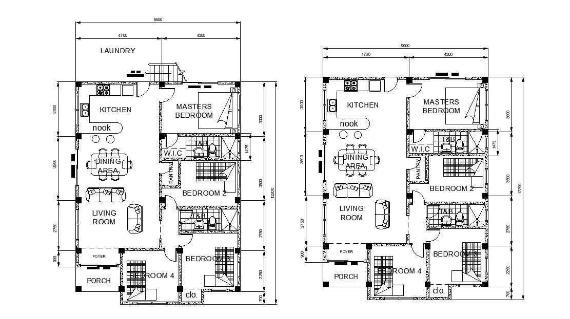
This AutoCAD DWG file contains a complete 9×13 house plan, showcasing accurate floor layouts, room partitions, and measurement details. Architects, contractors, and home designers will find it especially useful for planning interiors, allocating space efficiently, and visualizing structural divisions. Ideal for residential project blueprints, renovations, or new home construction, the plan allows easy customization, dimension checking, and design tweaking. Use this drawing as a foundation for designing corridors, living spaces, bedrooms, bathrooms, and utility areas within a compact footprint. With clear design representation and scalable details, this file streamlines coordination between clients, draftsmen, and construction teams.
Uploaded by:

