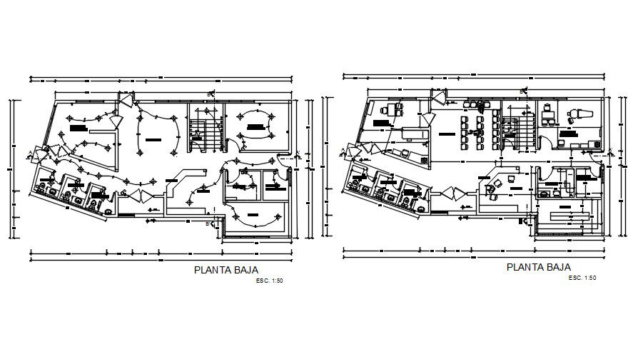
18x10m hospital plan is given in this autocad drawing file. Download the Autocad file.
Description
18x10m hospital plan is given in this autocad drawing file. Traumatology office, waiting room, ophthalmological office, deposit medical, injectable, pharmacy waste, nursing station, reception area, waiting area are available. For more details download the Autocad file. Thank you for downloading the Autocad file and other CAD program files from our website.
Uploaded by:

