20x18m house plan is presented in this Autocad 2D drawing file.Download the Autocad file.
Description
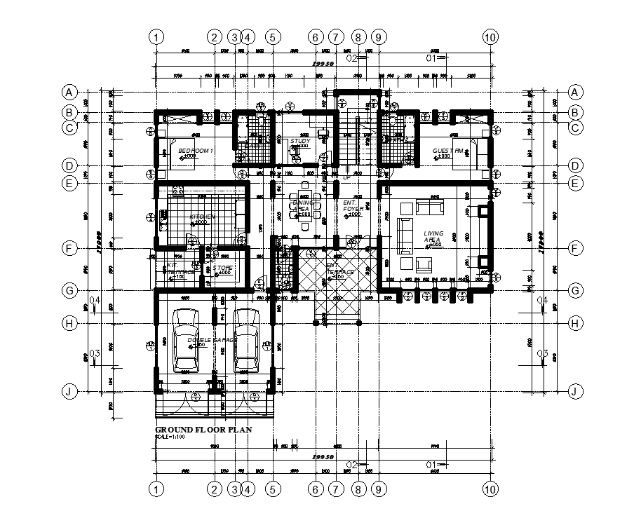
20x18m house plan is presented in this Autocad 2D drawing file. This is ground floor plan. Garage, kitchen with store room, kitchen terrace, entrance terrace, living area, dining area, foyer, master bedroom with attached toilet, study room and guest bedroom with attached bathroom and other details are given in this drawing model. For more details download the Autocad drawing file. Thank you for downloading the Autocad file and other CAD program files from our website.
Uploaded by:

