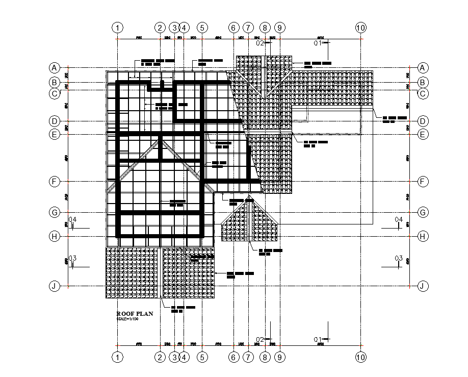
20x18m terrace roof plan is presented in this Autocad 2D drawing file. Download the Autocad file.
Description
20x18m terrace roof plan is presented in this Autocad 2D drawing file. This is G+1 house plan. This is given with 1:100 scale and all specifications. For more details download the Autocad drawing file. Thank you for downloading the Autocad file and other CAD program files from our website.
Uploaded by:

