A foundation layout of 19x10m house plan is given in this Autocad drawing file. Download now.
Description
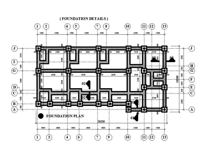
A foundation layout of 19x10m house plan is given in this Autocad drawing file. In this plan four houses are available. In these house kitchen, terrace, living room and master bedroom with attached water closet & showers are available. In fourth house, kitchen, living area, terrace, master bedroom, kid’s bedroom, and common toilet is available. For more details download the autocad drawing file. Thank you for downloading the Autocad file and other CAD program files from our website.
Uploaded by:

