37'x62' East facing house design as per vastu shastra is given in this FREE 2D Auto cad drawing file. Download now.
Description
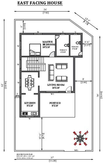
37'x62' East facing house plan as per Vastu shastra is given in this FREE 2D Autocad drawing file. The total built-up area of the plan is 1067sqft. In this floor plan master bedroom with attached bath, great room, breakfast, common bath, and kitchen are available.download this 2D Autocad drawing file.

Uploaded by:
AS
SETHUPATHI

