6x9m architecture house plan is given in this Autocad drawing file. Download now.
Description
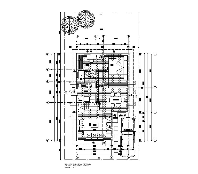
6x9m architecture house plan is given in this Autocad drawing file. This is G+1 house building. In this plan car parking, access area, estar, dining area, kitchen, master bedroom and common toilet is available. For more details download the Autocad drawing file. Thank you for downloading the Autocad drawing file and other CAD program files.
Uploaded by:

