Elevation view of 11x12m architectural house plan is given in this Autocad drawing file. Download now.
Description
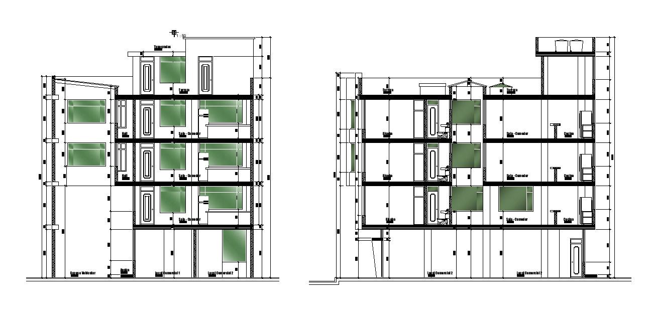
Elevation view of 11x12m architectural house plan is given in this Autocad drawing file. Total height of the building is 12m. This is G+3 house building. These houses are consists of kitchen, dining area, master bedroom with attached toilet, kid’s room, living area, guest room and common toilet is available. For more details download the Autocad DWG drawing file. Thank you for downloading the Autocad file and other CAD program files from our website.
Uploaded by:

