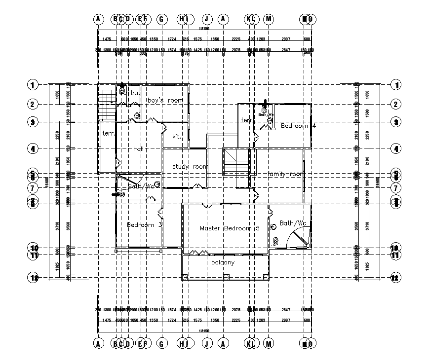
Plumbing layout of 18x17m first floor house plan is given in this Autocad drawing file. Download now.
Description
Plumbing layout of 18x17m first floor house plan is given in this Autocad drawing file. This is G+1 house building. Family area, kitchen, corridor, entrance, common water closet, lobby, master bedroom with attached bathroom, boy’s room, guest room with attached toilet is available. For more details download the Autocad drawing file. Thank you for downloading the Autocad drawing file and other CAD program files from our website.
File Type:
DWG
File Size:
2.5 MB
Category::
Dwg Cad Blocks
Sub Category::
Autocad Plumbing Fixture Blocks
type:
Gold
Uploaded by:

