200 Square Meter House Ground Floor And First Floor Plan DWG File
Description
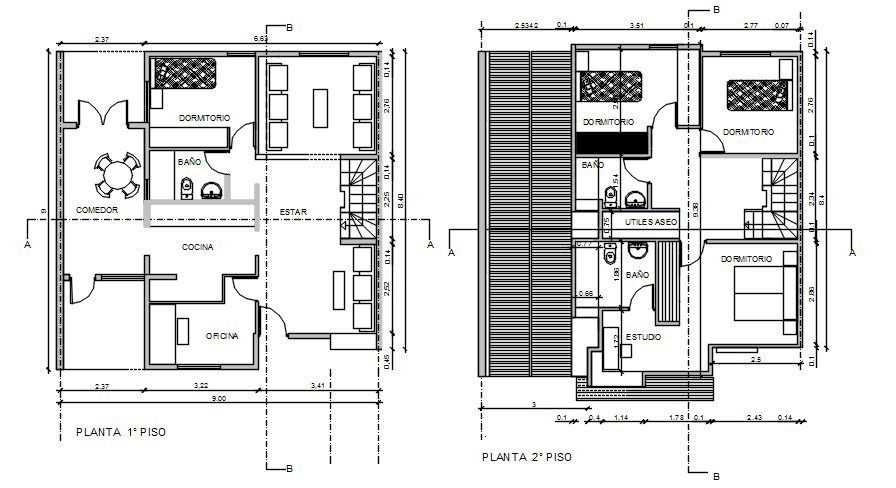
The residence house ground floor and first floor plan CAD drawing that shows total build area plot size is 200 square meter space planning 4 bedrooms, drawing room, kitchen, dining area, and living area and inside staircase detail with furniture layout plan. Thank you for downloading the AutoCAD drawing file and other CAD program files from our website.
Uploaded by:

