Section and elevation of 13x12m multifamily house plan is available in this Autocad drawing file. Download now.
Description
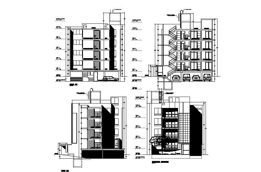
Section & elevation of 13x12m multifamily house plan is given in this Autocad drawing file. Total height of the building is 14.8m. This is G+4 apartment building. Car parking is available in the ground floor. In this plan master bedroom with attached toilet, kid’s bedroom, kitchen, dining, study room, common toilet, curato service, outside toilet and other details are given. For more details download the Autocad file. Thank you for downloading the Autocad file and other CAD program files from our website.
File Type:
DWG
File Size:
634 KB
Category::
Structure
Sub Category::
Section Plan CAD Blocks & DWG Drawing Models
type:
Gold
Uploaded by:

