A section view of 7x15m house plan is given in this Autocad drawing file. Download now.
Description
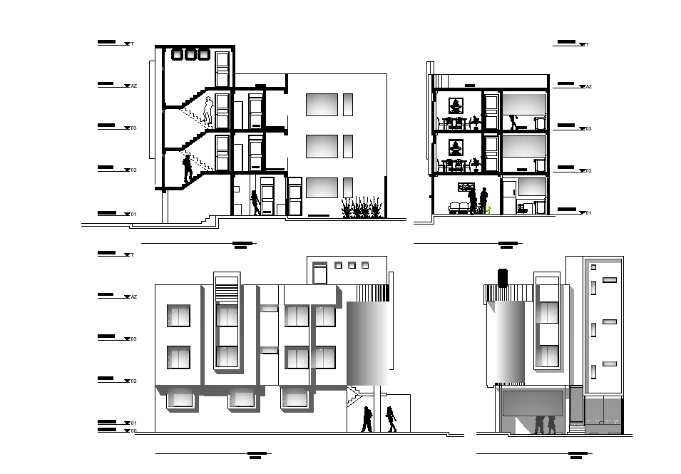
A section view of 7x15m house plan is given in this Autocad drawing file. This is G+2 house building. In the ground floor, the living hall, kitchen, dining area, master bedroom, car parking, patio and common toilet is available. In the first floor, the living hall, kitchen, dining area, master bedroom, kid’s room, patio and common toilet is available. For more detail download the Autocad file. Thank you for downloading the Autocad file and other CAD program files from our website.
File Type:
DWG
File Size:
2.3 MB
Category::
Structure
Sub Category::
Section Plan CAD Blocks & DWG Drawing Models
type:
Gold
Uploaded by:

