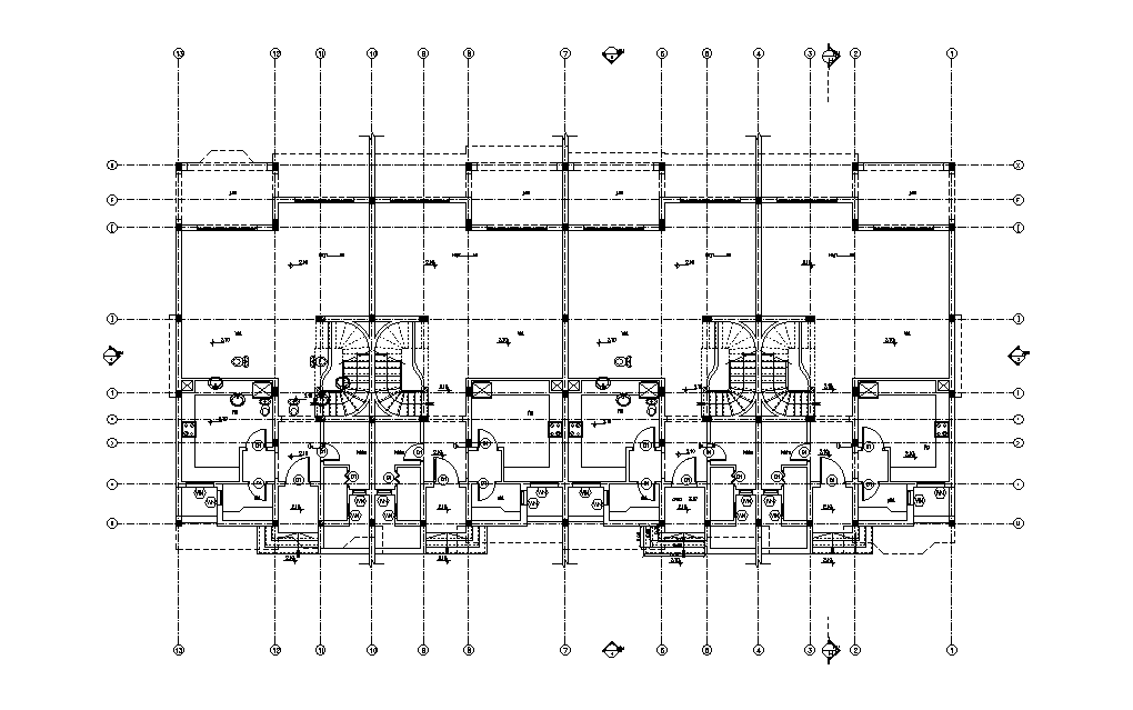
G+1 town house plan is given in this Autocad drawing file.Download now.
Description
G+1 town house plan is given in this Autocad drawing file. In each floor two houses are available. In this town house, the living area, master bedroom with attached toilet, kitchen, kid’s rooms with attached toilet, kitchen, dining area, and common toilet is available. For more detail download the Autocad file. Thank you for downloading the Autocad file and other CAD program files from our website.
Uploaded by:

