Elevation and section view of 16x8m house plan is given in this Autocad drawing file. Download now.
Description
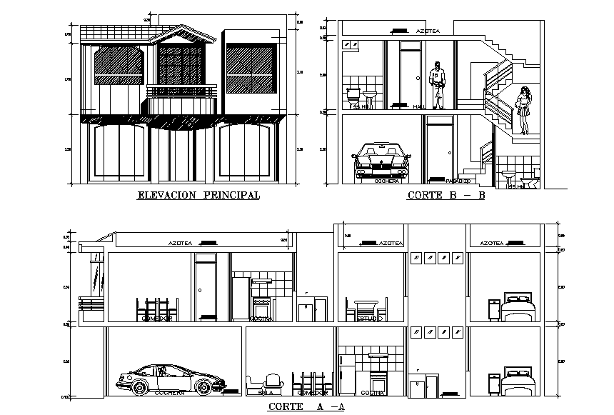
Elevation and section view of 16x8m house plan is given in this Autocad drawing file. This is G+1 house building. In the ground floor, the car parking, living area, kitchen, dining hall, patio, master bedroom with attached toilet, kid’s room with attached toilet, guest room and common toilet is available. In the first floor, living area, kitchen, dining hall, study room, patio, master bedroom with attached toilet, kid’s room with attached toilet, guest room and common toilet is available. For more details download the Autocad file. Thank you for downloading the Autocad file and other CAD program files from our website.
Uploaded by:

