10x19m house plan is given in this Autocad drawing file. Download now.
Description
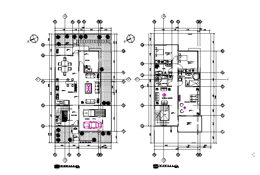
10x19m house plan is given in this Autocad drawing file. This is G+1 house building. In this plan, garden, car parking, living area, kitchen, dining area, and study room is available in the ground floor. In the first floor, master bedroom, two common toilets, kid’s room, guest room and patio is available. For more details download the Autocad file. Thank you for downloading the Autocad files and other CAD program files from our website.
Uploaded by:

