This AutoCAD drawing file specified row house floor plan detail. Download 2d autocad drawing file.
Description
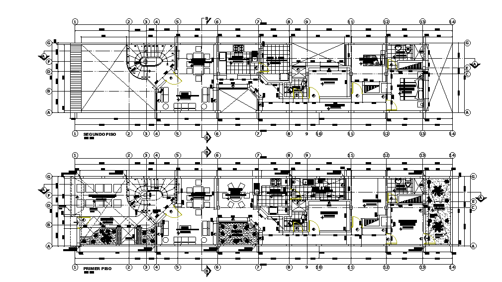
This AutoCAD drawing file specified row house floor plan detail. this file consists of door window detail, flooring detail, section and elevation detail, glass window elevation detail, with dimensions and specifications. this can be used by architects and engineers. Download this 2d AutoCAD drawing file.
Uploaded by:

