A section view of 12x8m house plan is given in this Autocad drawing file. Download now.
Description
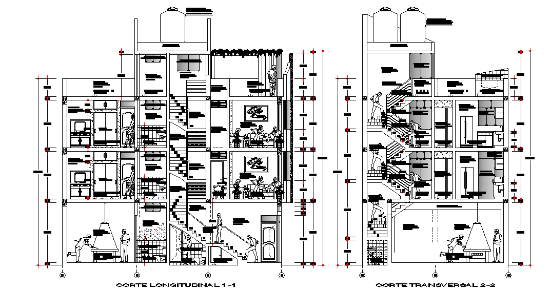
A section view of 12x8m house plan is given in this Autocad drawing file. This is G+2 house building. These houses are consists of kitchen, dining area, living hall, Common toilet, master bedroom with attached toilet, kid’s room and guest room is available. For more details download the Autocad drawing file. Thank you for downloading the Autocad drawing file and other CAD program files from our website.
Uploaded by:

