An elevation & section view of 11x25m house plan is given in this Autocad drawing file. Download now.
Description
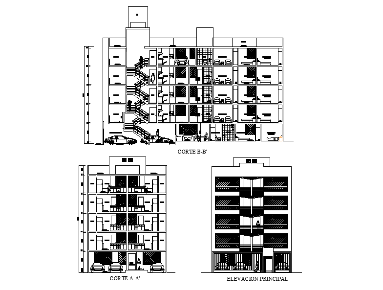
An elevation & section view of 11x25m house plan is given in this Autocad drawing file. This is G+4 apartment building. In each floor three houses are available. These house are consists of the living area, kitchen, dining area, patio, master bedroom with attached toilet, kid’s room, guest room and common toilet is available. For more details download the Autocad drawing file. Thank you for downloading the Autocad files and other CAD program files from our website.
File Type:
DWG
File Size:
1.4 MB
Category::
Structure
Sub Category::
Section Plan CAD Blocks & DWG Drawing Models
type:
Gold
Uploaded by:

