An elevation and section view of 7x12m house building is given in this Autocad drawing file. Download now.
Description
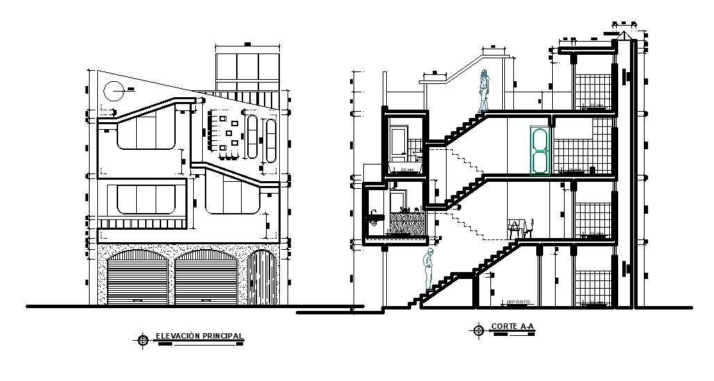
An elevation and section view of 7x12m house building is given in this Autocad drawing file. This is G+1 house building. In the ground floor, the living area, kitchen, dining area, bar, patio service, and common water closet is available. In the first floor, the family lounge, master bedroom with attached toilet, kid’s toilet, guest room and common toilet is available. For more details download the Autocad drawing file. Thank you for downloading the Autocad files and other CAD program files from our website.
Uploaded by:

