Ground and first floor of the house plan has been given in this Autocad drawing file. Download now.
Description
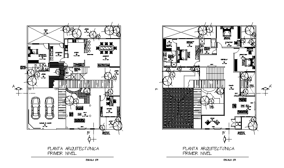
Ground and first floor of the house plan has been given in this Autocad drawing file. This is G+1 house building. In the ground floor, the car parking, living area, study room, kitchen, dining area, garden, service area, lavanderia, master bedroom with attached toilet, and patio is available. In the first floor, the family lounge, study room, master bedroom with attached toilet, common toilet, guest room, kid’s room and vestibulo is available. For more details download the Autocad drawing file. Thank you for downloading the Autocad files and other CAD program files from our website.
Uploaded by:

