300 Square Meter House Building Section And Elevation Design Download DWG File
Description
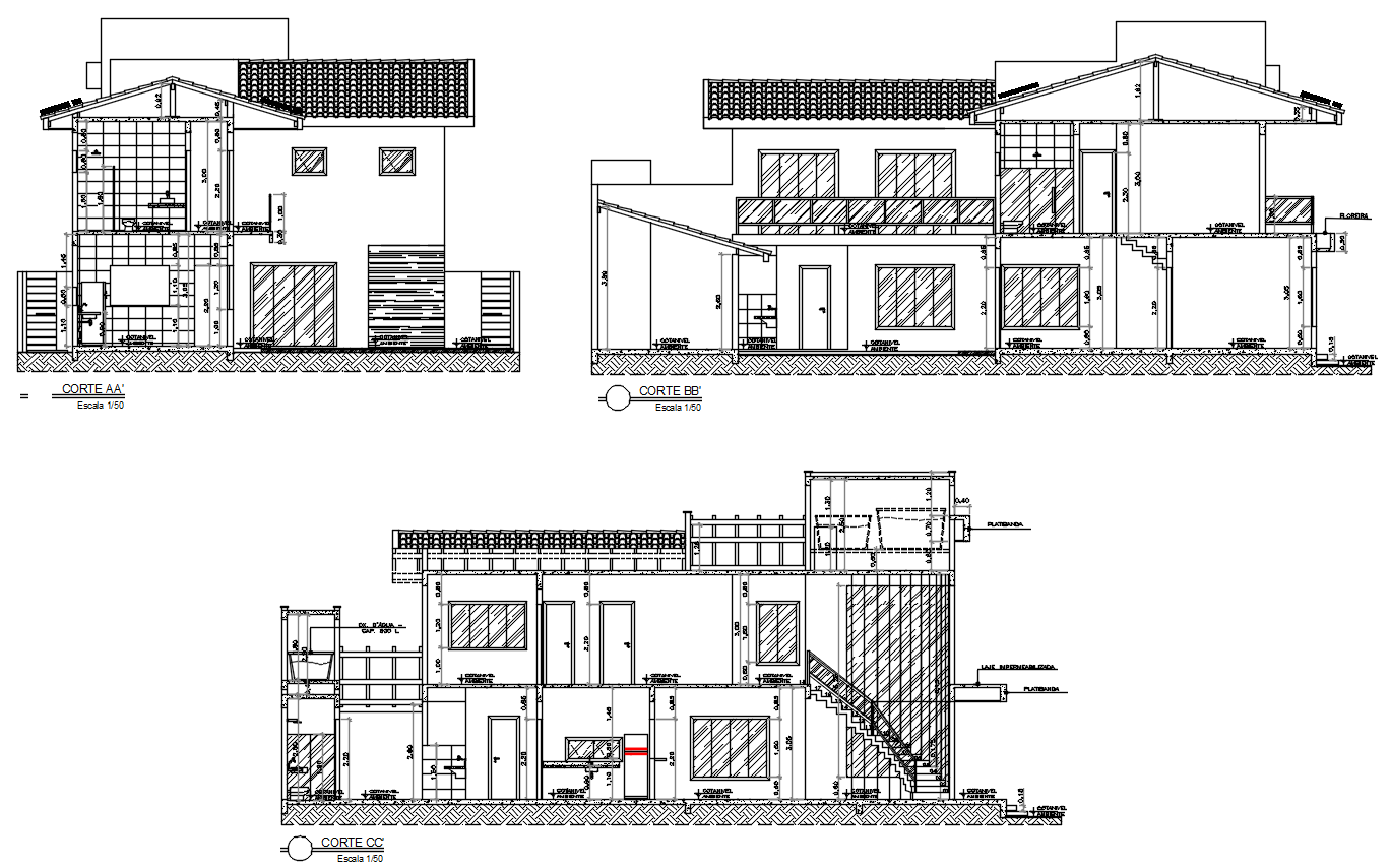
The architecture residence house building section drawing and elevation design that shows G+1 storey floor level building model design, the total breadth and length is 22X14 meter plot size. also has door window marking, inside staircase and truss span roof detail. Thank you for downloading the AutoCAD file and other CAD programs from our website.
Uploaded by:

