3 BHK House Plan With 2 Different Option AutoCAD Drawing DWG File
Description
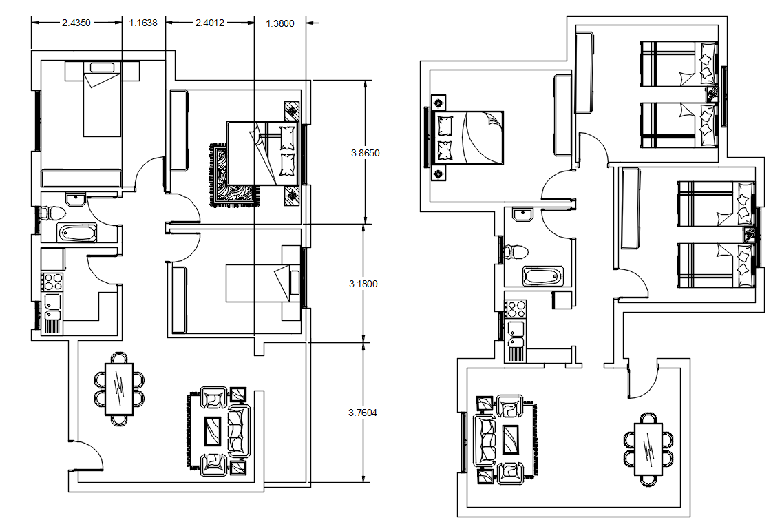
The residence 3 BHK house with furniture layout AutoCAD drawing that shows 2 different options is available in dwg file, select the one which is more suitable at your property. Thank you for downloading the Autocad drawing file and other CAD program files from our website.
Uploaded by:

