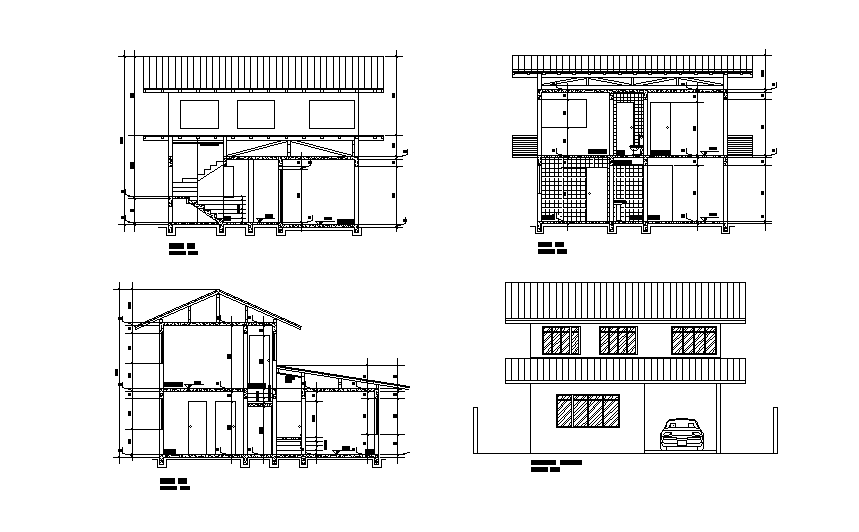
Section and elevation of 8X8m house plan is given in this Autocad drawing file. Download now.
Description
Section and elevation of 8X8m house plan is given in this Autocad drawing file. This is ground floor house plan. In this kitchen, dining area, car parking, living area, service area and common toilet is available. For more details download the Autocad file. Thank you for downloading the Autocad file and other CAD program files from our website.
Uploaded by:

