7X5 Meter House Building Sectional Elevation Drawing Download DWG File
Description
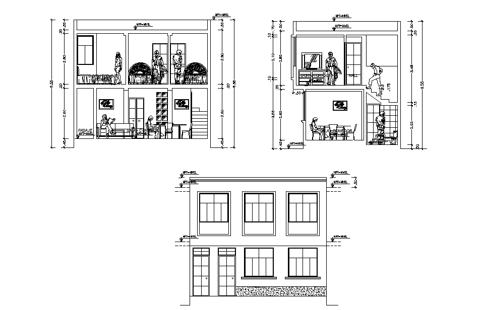
The residence house building sectional elevation CAD drawing that shows G+1 storey floor level 6.5 meter building height model design, the total house breadth, and length is 7X5 meter plot size. Thank you for downloading the Autocad file and other CAD program files from our website.
Uploaded by:

