12x15m house plan sanitary pipe lines are given in this Autocad drawing file. Download now.
Description
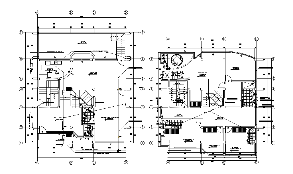
12x15m house plan sanitary pipe lines are given in this Autocad drawing file. This is G+1 house plan. In this sanitary lines are given around the water closet, bathroom, wash basin, kitchen and other details are available. For more details download the Autocad file. Thank you for downloading the Autocad file and other CAD program files from our website.
Uploaded by:

