28x17m hospital plan details are given in this Autocad drawing file. Download now.
Description
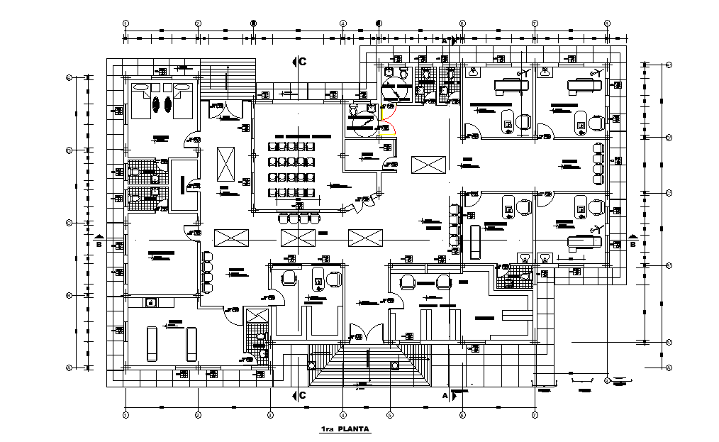
28x17m hospital plan details are given in this Autocad drawing file. This is single story hospital building. Pharmacy, laboratory, waiting hall, reception, doctor consulting rooms, water closet for male & female, patient’s bed and other details are given. For more details download the Autocad file. Thank you for downloading the Autocad file and other CAD program files from our website.
Uploaded by:

