4 Bedrooms house layout Plan AutoCAD Drawing Download DWG File
Description
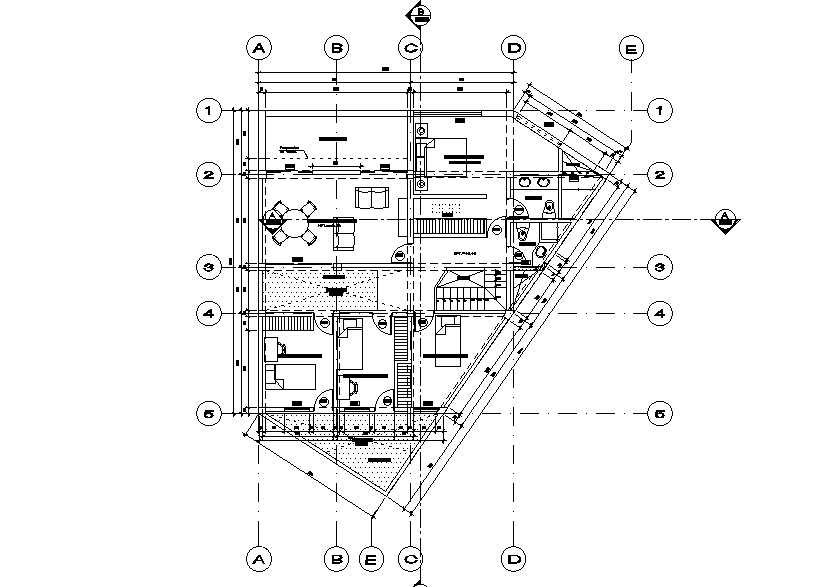
The residence house layout plan AutoCAD drawing which includes 4 bedrooms kitchen, dining area, living room, dining area, and staircase with all dimension and furniture detail. also has centre line plan for help to a civil engineer. For more details download the Autocad file. Thank you for downloading the Autocad file and other CAD program files from our website
Uploaded by:

