A section view of 10x4m bedroom cum toilet plan is given in this Autocad drawing file. Download now.
Description
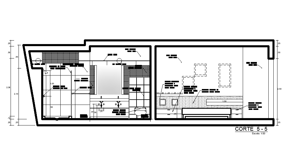
A section view of 10x4m bedroom cum toilet plan is given in this Autocad drawing file. Total height of the building is 3.25m. In this one bed, water closet, shower and wash basin is available. For more details download the Autocad drawing file. Thank you for downloading the Autocad drawing file and other CAD program files from our website.
File Type:
DWG
File Size:
333 KB
Category::
Structure
Sub Category::
Section Plan CAD Blocks & DWG Drawing Models
type:
Gold
Uploaded by:

