195x167m hospital furniture’s details are given in this Autocad drawing file.Download now.
Description
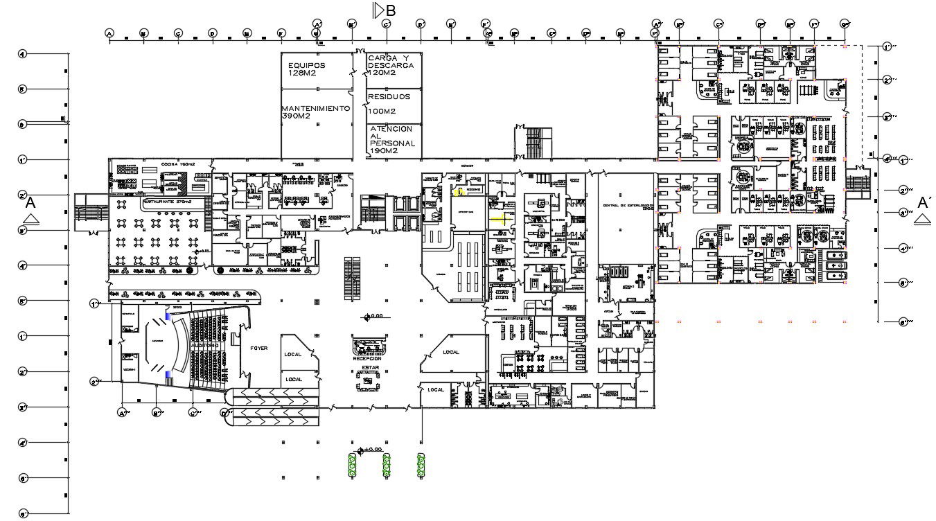
195x167m hospital furniture’s details are given in this Autocad drawing file. This is G+ 6 hospital building. Restaurant, reception, waiting hall, token counter, monogram laboratory, x ray room, scan room, ultra sound room, doctors consulting room, duty doctors lounge area, nurse station, doctors toilet, gent’ s toilet, ladies toilet, angiometria, imagenologia and other details are mentioned in this drawing model. For more details download the Autocad file. Thank you for downloading the Autocad file and other CAD program files from our website.
Uploaded by:

