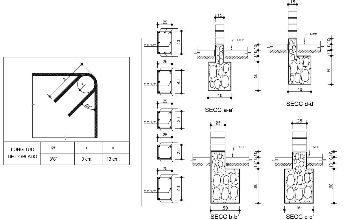
17x15m twin house plan of reinforcement hook details are given in this Autocad drawing file. Download now.
Description
17x15m twin house plan of reinforcement hook details are given in this Autocad drawing file. This is G+2 twin house building. Measurement and reinforcement details are given in this drawing model. For more details download the Autocad drawing file. Thank you for downloading the Autoad drawing file and other CAD program files from our cadbull website.
Uploaded by:

