AutoCAD Architecture House Ground Floor Plan And First Floor Plan Drawing Download DWG File
Description
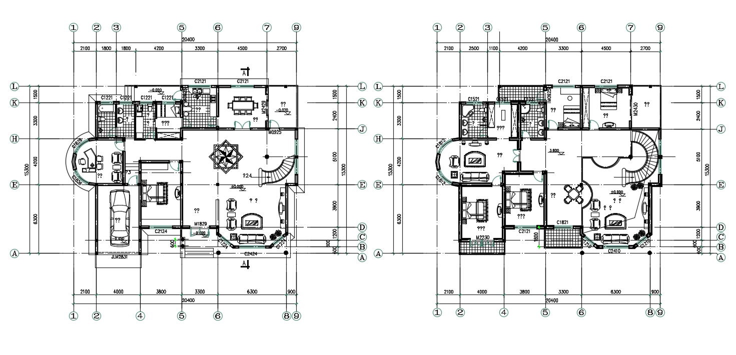
The architecture house ground floor plan and first-floor plan with furniture layout CAD drawing which includes car parking porch, drawing room, living area, kitchen, 4 bedrooms with master bathroom and dress. the addition drawing such as a number of doors and window marking, and centre line plan with dimension detail. download AutoCAD house plan design and select which is more suitable at your ideal house plan design. Thank you for downloading the AutoCAD drawing file and other CAD program files from our website.
Uploaded by:

