14X6.5 Meter House Building Sectional Elevation Drawing DWG File
Description
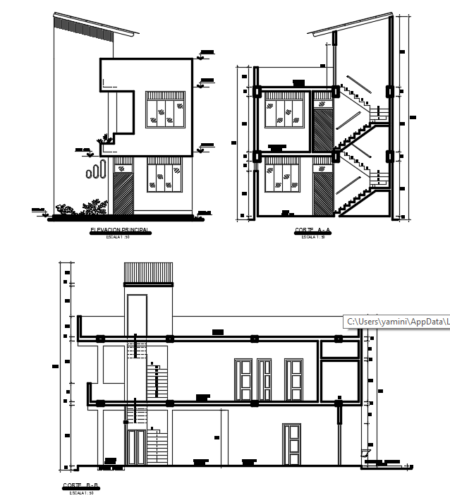
the AutoCAD house building section elevation drawing shows G+1 storey floor level building model design, The length, and breadth of the house are 14m X6.5m respectively. the addition drawing such as column and slab marking detail dwg file. Thank you for downloading the AutoCAD drawing file and other CAD program files from our website.
Uploaded by:

