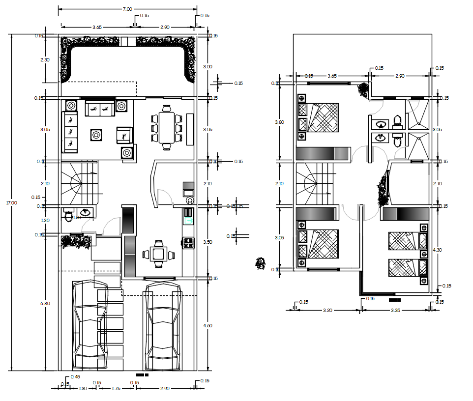
7X17 Meter House Ground Floor And First Floor Plan AutoCAD Drawing Download DWG File
Description
The residence house space planning plot size 7mX17m ground floor plan and first-floor plan includes 3 bedrooms, drawing room, kitchen, dining area, wash area, inside staircase, and car parking space. the additional detail such as furniture layout and dimension detail dwg file. Thanks for downloading the file and another CAD program from the cadbull.com website.
Uploaded by:

