10X16 Meter House Layout Plan AutoCAD Drawing Download DWG File
Description
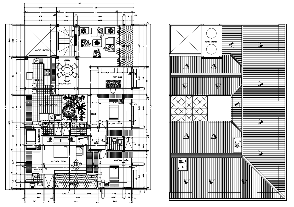
10X16 meter house layout plan AutoCAD drawing and top view span roof plan which includes 3 bedrooms, study room, kitchen, dining area, drawing room and toilet with all dimension detail, the addition drawing such as column layout and furniture plan design dwg file. Thanks for downloading the file and another CAD program from the cadbull.com website.
Uploaded by:

