House Bedrooms Floor Plan AutoCAD Drawing Download DWG File
Description
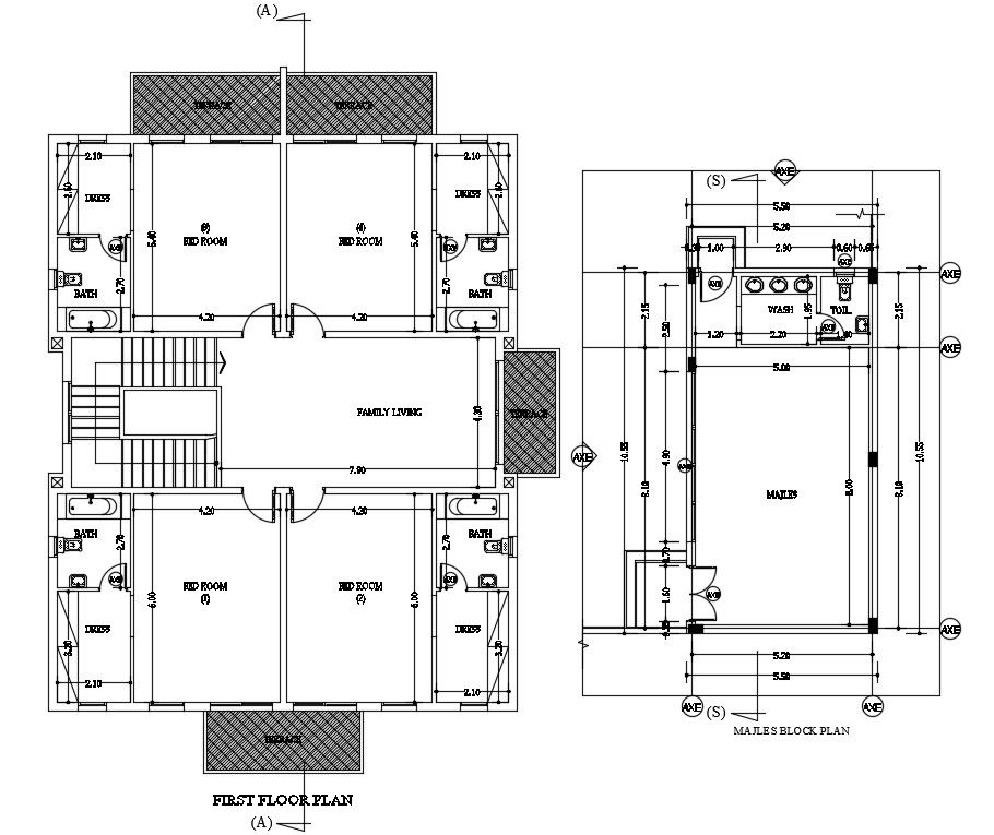
The residence house bedrooms floor plan AutoCAD drawing which includes 4 master bedrooms with an attached toilet and dress room ,living room inside staircase and balcony on each bedrooms with measurement detail dwg file. Thank you for downloading the AutoCAD file and other CAD program files from our website.
Uploaded by:

