Row House Layout Plan With Door Window Drawing Download DWG File
Description
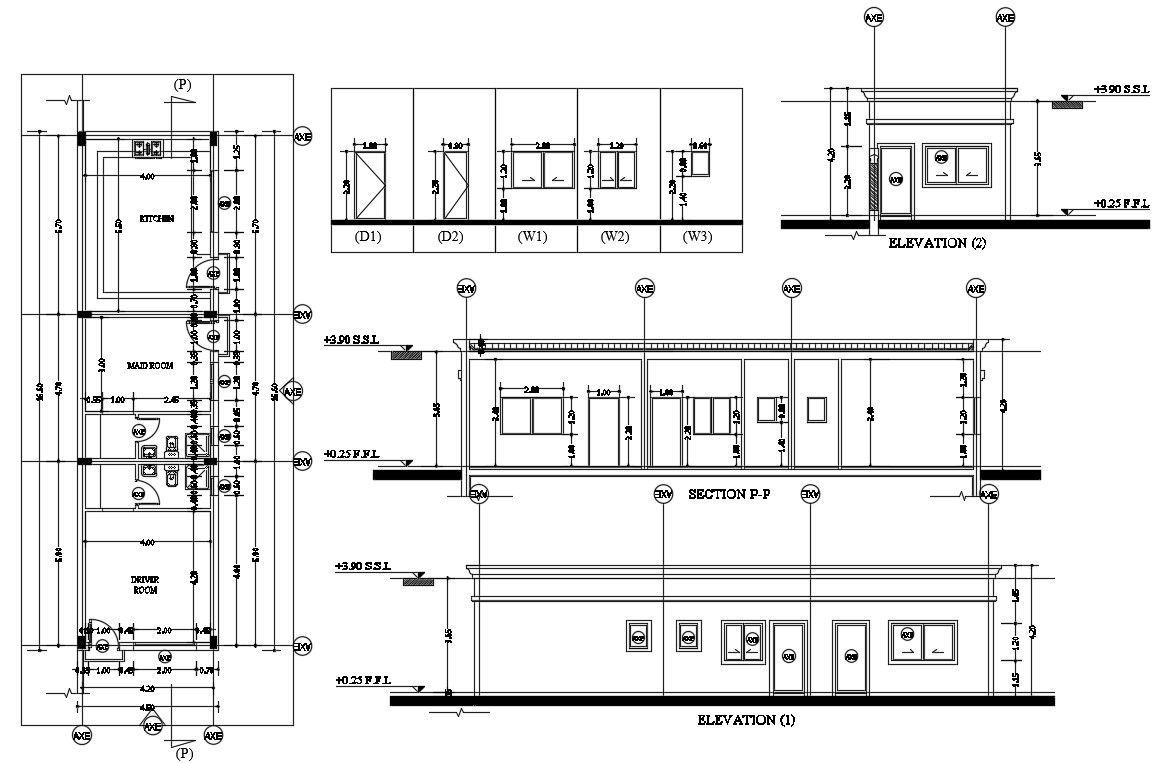
The residence house layout plan AutoCAD drawing which includes center line with dimension detail, door window marking with height detail and column layout plan drawing download dwg file. Thank you for downloading the AutoCAD file and other CAD program files from our website.
Uploaded by:

