14mX12m House Ground Floor plan And Sectional Elevation Design DWG File
Description
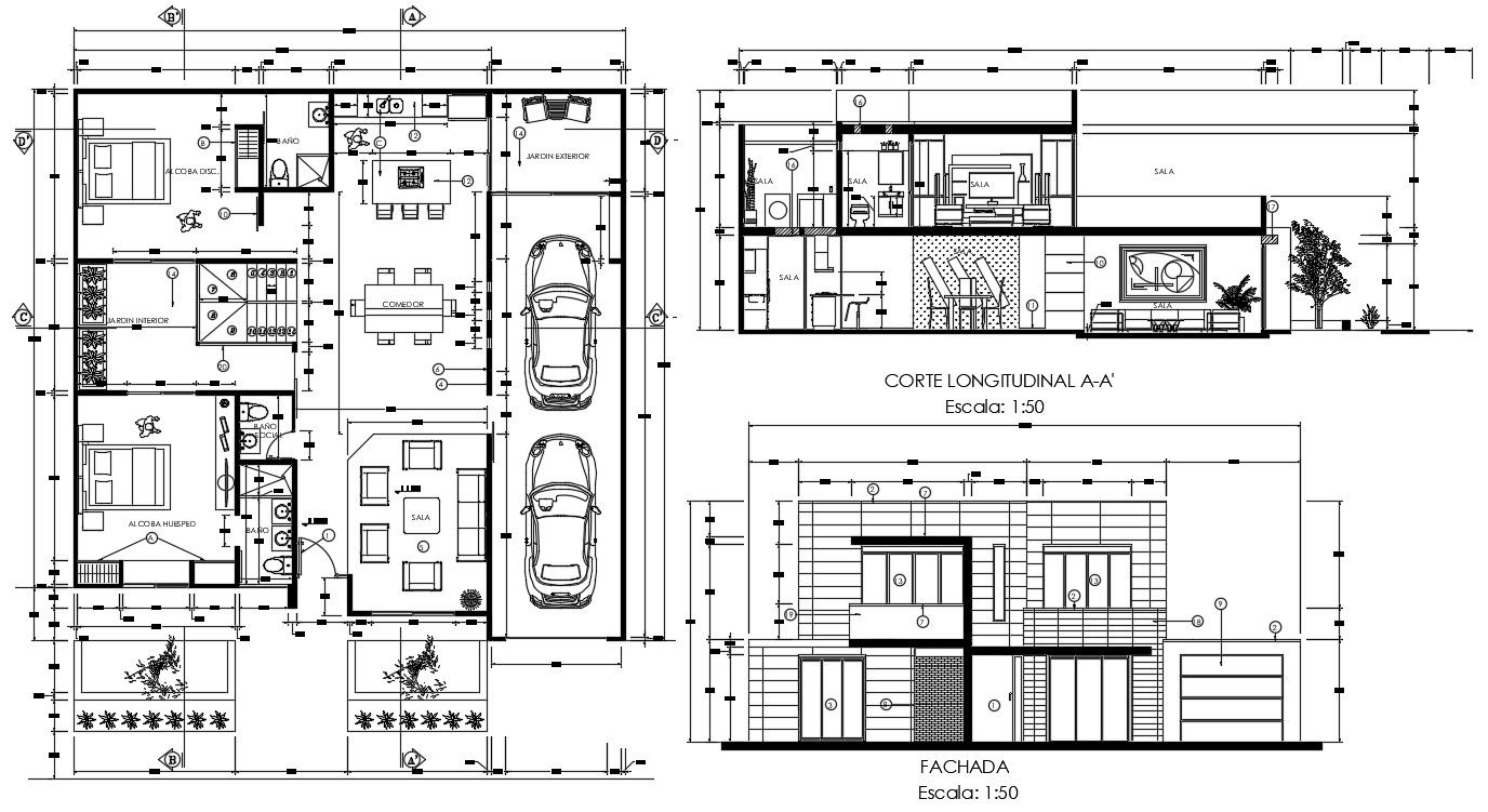
The residence house ground floor plan CAD drawing that shows 14X12 meter plot size, front elevation, section drawing, car parking garage, 2 bedrooms, kitchen, drawing room, kitchen and dining area. also has all furniture layout plan with dimension detail dwg file. Thank you for downloading the AutoCAD file and other CAD program files from our website.
Uploaded by:

