14X12 Meter House Building section drawing Download DWG File
Description
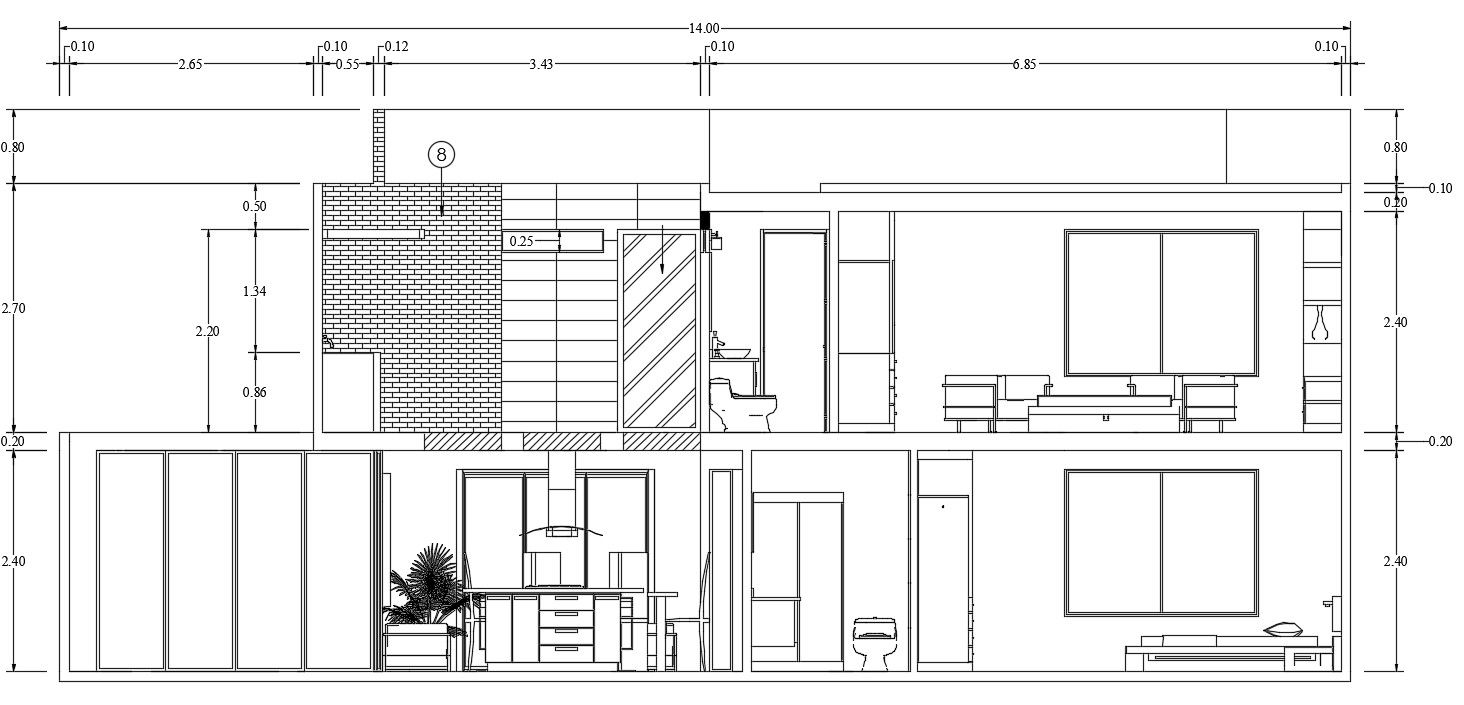
The residence house building section drawing which includes modular kitchen, inside staircase, bedrooms and the total 14X12 meter breadth and depth of house detail dwg file. also has sows cross furniture section view. Thank you for downloading the AutoCAD file and other CAD program files from our website.
Uploaded by:

